회사소개
인사말
회사 조직도
오시는길
장비안내
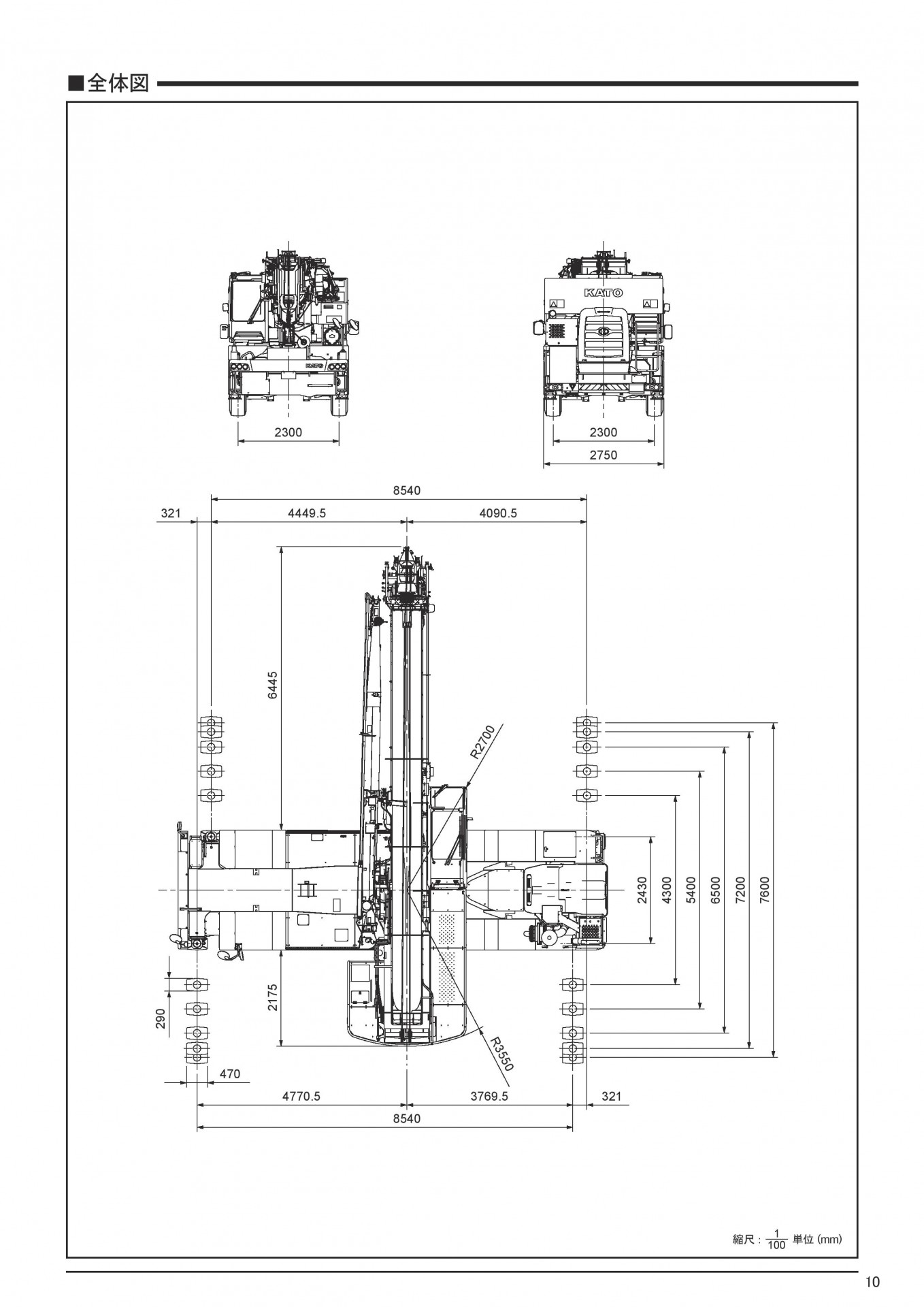
SR-250Ri
SL-500RF
LTM-1055
LTM-1070
LTM-1095
LTM-1130
LTM-1200
LTM-1250
GMK6300L-1
LTM-1300(92m)
LTM-1500(50m/84m)
포트폴리오
고객문의
회사소개
인사말
회사 조직도
오시는길
장비안내
SR-250Ri
SL-500RF
LTM-1055
LTM-1070
LTM-1095
LTM-1130
LTM-1200
LTM-1250
GMK6300L-1
LTM-1300(92m)
LTM-1500(50m/84m)
포트폴리오
고객문의
회사소개
장비안내
포트폴리오
고객문의
장비안내
SR-250Ri
SL-500RF
LTM-1055
LTM-10
70
LTM-1095
LTM-1
130
LTM-1
200
LTM-1
250
GMK6300-L1
LTM-1300
LTM-1500
확대
축소
초기화
닫기
확대
축소
초기화
닫기
확대
축소
초기화
닫기
확대
축소
초기화
닫기
장비안내
RK-250
RK-450
L
TM-1055
LTM-1090
LTM-1160
LTM-1200
LTM-1250
LTM-1300
LTM-1400
LTM-1500(50m)
LTM-1500(84m)
확대
축소
초기화
닫기